Bagikan Pos

https://www.ngambis.id/posts/soal-dan-pembahasan-simulasi-tka-resmi-matematika-jenjang-smamasmkmaksederajat

Soal dan Pembahasan Simulasi TKA Resmi Matematika Wajib Jenjang SMA/MA/SMK/MAK/Sederajat

Oleh Anggara Duta Medika • 12 Oct 2025

Soal dan Pembahasan Simulasi TKA Resmi Matematika Wajib Jenjang SMA/MA/SMK/MAK/Sederajat

TKA Matematika mengukur kemampuan murid dalam memahami fakta, konsep, prinsip, dan prosedur matematika, serta kemampuan mereka dalam menerapkan pengetahuan matematika untuk menyelesaikan masalah (problem solving).

Muatan

Muatan TKA Matematika merujuk pada elemen kurikulum atau materi matematika yang dipelajari murid yang ada pada Kurikulum 2013 dan Kurikulum Merdeka. Elemen ini meliputi:

  • bilangan
  • aljabar,
  • geometri dan pengukuran,
  • data dan peluang, dan
  • trigonometri.

Penggunaan logika matematika diintegrasikan langsung dengan elemen matematika yang tertera dalam kurikulum. Pengetahuan matematika diukur melalui permasalahan dalam konteks matematika dan permasalahan dalam konteks keseharian yang dapat meliputi kejadian atau situasi di lingkungan personal, keluarga, atau lingkungan sekitar baik lokal maupun global.

Kompetensi

Level 1 — Pengetahuan dan Pemahaman (Knowing and Understanding)

Proses Berpikir:

  • Menghitung: Melakukan perhitungan berdasarkan prosedur yang mencakup operasi hitung aritmatika (+, −, ×, ÷, atau kombinasinya), operasi aljabar, atau operasi matematika lainnya.
  • Memahami informasi: Memahami informasi dari grafik fungsi, tabel, diagram, infografis, atau bentuk visual lainnya.
  • Mengelompokkan: Mengelompokkan objek berdasarkan fakta, konsep, dan prinsip matematika dalam cakupan sub-elemen.
  • Mengidentifikasi: Melakukan identifikasi terhadap objek menggunakan konsep, fakta, dan prinsip matematika dalam cakupan sub-elemen.

Level 2 — Aplikasi (Applying)

Proses Berpikir:

  • Memodelkan: Memodelkan permasalahan kontekstual terkait cakupan sub-elemen ke dalam pernyataan matematika.
  • Menerapkan: Menerapkan strategi dan operasi matematika (berupa operasi hitung, operasi aljabar, atau bentuk operasi lainnya) untuk menyelesaikan permasalahan yang melibatkan konsep dan prosedur matematis yang familiar dan rutin.
  • Menginterpretasikan: Memahami dan menjelaskan makna dari berbagai situasi, kejadian, pernyataan, representasi, atau masalah matematika.

Level 3 — Penalaran (Reasoning)

Proses Berpikir:

  • Menganalisis: Menentukan, menjelaskan, dan menggunakan hubungan beberapa konsep, fakta, prinsip, atau prosedur matematika dalam cakupan sub-elemen.
  • Memecahkan masalah: Mengaitkan beberapa konsep, fakta, prinsip, prosedur, dan representasi matematika dalam cakupan sub-elemen, untuk menyelesaikan permasalahan dalam situasi baru atau konteks yang tidak rutin.
  • Mengevaluasi: Mengevaluasi alternatif strategi dan solusi dari suatu pemecahan masalah.
  • Menyimpulkan: Menarik kesimpulan yang valid dari informasi, data, atau bukti yang diberikan menggunakan konsep, fakta, prinsip, dan prosedur matematika dalam cakupan sub-elemen.
  • Melakukan generalisasi: Menyusun pernyataan matematis yang menggambarkan hubungan yang lebih umum terkait konsep, fakta, prinsip, dan prosedur dalam cakupan sub-elemen.
  • Menjustifikasi: Memberikan argumen matematis atau langkah/prosedur operasi matematika secara logis untuk mendukung strategi atau solusi dari suatu permasalahan.

Soal 1

Mudah

Harga 3 buah buku dan 2 buah penggaris Rp18.000,00. Jika harga sebuah buku Rp1.000,00 lebih mahal dari sebuah penggaris, harga 2 buah buku dan 5 buah penggaris adalah ...

Kita misalkan dulu ya:

  • $x$: harga buku satuan * $y$: harga penggaris satuan Karena harga 3 buah buku dan 2 buah penggaris Rp18.000,00, maka persamaannya adalah

$$ 3x + 2y = 18.000. $$

Selanjutnya, karena harga sebuah buku Rp1.000,00 lebih mahal dari sebuah penggaris, maka persamaannya adalah

$$ x = 1.000 + y. $$

Mensubstitusikan persamaan kedua ke persamaan pertama, kita akan mendapatkan

$$ 3(1.000 + y) + 2y = 18.000 $$

$$ 3.000 + 3y + 2y = 18.000 $$

$$ 5y = 15.000 $$

$$ y = 3.000 $$

Mensubstitusikan nilai $y$ ini ke persamaan kedua, kita akan mendapatkan

$$ x = 1.000 + 3.000 = 4.000. $$

Jadi, harga 2 buah buku dan 5 buah penggaris adalah

$$ 2x + 5y = 2(4.000) + 5(3.000) = 8.000 + 15.000 = 23.000 $$

Jawaban: (B) Rp23.000,00

Gimana, apakah jawaban kalian benar?


Soal 2

Mudah

Perhatikan gambar berikut.

Daerah yang memenuhi sistem pertidaksamaan linear

$$ \begin{cases} x + y \leq 4 \\ x + 3y \geq 6 \\ x \geq 0 \\ y \geq 0 \end{cases} $$

adalah ...

Kita beri nama garis-garisnya dulu ya, agar lebih gampang menjawab soalnya.

Sekarang, fokus ke sistem pertidaksamaannya. Agar lebih mudah, kita ubah dulu tanda $\leq$ dan $\geq$ menjadi $=$.

persamaan $x$ $y$ titik yang dilewati
$x + y = 4$ $0$ $4$ $(0, 4)$
$4$ $0$ $(4, 0)$
$x + 3y = 6$ $0$ $2$ $(0, 2)$
$6$ $0$ $(6, 0)$

Dari tabel di atas, jelas bahwa $x + y = 4$ merupakan garis $A$ dan $x + 3y = 6$ merupakan garis $B$.

Balik lagi ke pertidaksamaannya:

  1. daerah $x + y \leq 4$ berada di sebelah kiri/bawah garis $A$ 2. daerah $x + 3y \geq 6$ berada di sebelah kanan/atas garis $B$ 3. daerah $x \geq 0$ berada di sebelah kanan sumbu-$y$ 4. daerah $y \geq 0$ berada di sebelah atas sumbu-$x$ Berikut merupakan arsiran dari daerah-daerah tersebut. Di sini, kita balik arsirannya agar tidak terlalu rame grafiknya.

Jadi, daerah yang memenuhi sistem pertidaksamaan linear tersebut adalah daerah II.

Jawaban: (B) II

Gimana, apakah jawaban kalian benar?


Soal 3

Sedang

Diketahui fungsi $f(x) = \sqrt{2x + 3}$, dengan $x \geq -\dfrac{3}{2}$. Jika $f^{-1}(x)$ adalah invers dari fungsi $f$, nilai dari $f^{-1}(3)$ adalah ...

Agar lebih mudah, kita misalkan saja $f(x)$ sebagai $y$. Untuk mencari invers fungsi, kita cukup modifikasi dari $y =$ sesuatu dalam $x$ menjadi $x =$ sesuatu dalam $y$.

$$ y = \sqrt{2x + 3} $$

$$ y^2 = 2x + 3 $$

$$ y^2 - 3 = 2x $$

$$ x = \frac{y^2 - 3}{2} $$

Sekarang, kita ganti $x$ menjadi $f^{-1}(x)$ dan $y$ menjadi $x$.

Oleh karena itu, invers dari fungsi $f$ adalah

$$ f^{-1}(x) = \frac{x^2 - 3}{2} $$

sehingga

$$ f^{-1}(3) = \frac{3^2 - 3}{2} = \frac{6}{2} = 3. $$

Jawaban: (B) $3$

Gimana, apakah jawaban kalian benar?


Soal 4

Mudah

Diberikan fungsi $f: \RR \to \RR$ dan $g: \RR \to \RR$. Jika $g(x) = x - 1$ dan $(f \circ g)(x) = x^3 - 4x$, nilai dari $f(2)$ adalah ...

Perhatikan bahwa

$$ (f \circ g)(x) = x^3 - 4x $$

$$ f(g(x)) = x^3 - 4x $$

$$ f(x - 1) = x^3 - 4x $$

Di sini, kalian pasti berpikir untuk mencari $f(x)$, padahal ini sebenarnya tidak perlu. Kalian cukup cocoklogi $x = 3$ pada persamaan di atas agar $f(x - 1)$ menjadi $f(2)$:

$$ f(3 - 1) = 3^3 - 4(3) \implies f(2) = 27 - 12 = 15 $$

Jawaban: (C) $15$

Gimana, apakah jawaban kalian benar?


Soal 5

Sedang

Seorang peneliti melakukan pengamatan terhadap bakteri tertentu. Setiap $\dfrac{1}{2}$ hari, bakteri membelah diri menjadi dua. Pada awal pengamatan terhadap 2 bakteri. Jika setiap 2 hari $\dfrac{1}{4}$ dari jumlah bakteri mati, banyaknya bakteri setelah tiga hari adalah ...

Soal ini lebih mudah jika dikerjakan manual!

  • Awal: 2 bakteri * $\dfrac{1}{2}$ hari: 4 bakteri * $1$ hari: 8 bakteri * $1 \dfrac{1}{2}$ hari: 16 bakteri * $2$ hari: mati $1/4$-nya menjadi 12 bakteri, kemudian membelah diri menjadi 24 bakteri.

  • $2 \dfrac{1}{2}$ hari: 48 bakteri * $3$ hari: 96 bakteri


Soal 6

Sedang

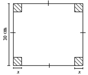
Dari selembar karton berbentuk persegi yang berukuran sisi 30 cm akan dibuat kotak tanpa tutup, dengan cara menggunting empat persegi di setiap pojok karton, seperti pada gambar.

Volume kotak terbesar yang dapat dibuat adalah ...

Panjang dan lebar dari kotak tersebut nantinya adalah $30 - 2x$. Selain itu, tinggi dari kotak tersebut nantinya adalah $x$. Oleh karenanya, volume kotaknya adalah

$$ V = (30 - 2x)(30 - 2x)x $$

$$ = (900 - 120x + 4x^2)x $$

$$ = 900x - 120x^2 + 4x^3 $$

Untuk mencari volume terbesar, kita turunkan $V$ lalu buat sama dengan 0.

$$ V' = 900 - 240x + 12x^2 = 0 $$

Agar lebih mudah, kita bagi 12 kedua ruas sehingga persamaannya akan menjadi

$$ x^2 - 20x + 75 = 0 $$

$$ (x - 5)(x - 15) = 0 $$

Selanjutnya, kita substitusi $x = 5$ dan $x = 15$ ke $V$ dan cari yang nilainya terbesar.

  • $x = 5$: $V = (30 - 2(5))^2 \cdot 5 = 20^2 \cdot 5 = 2.000$ * $x = 15$: $V = (30 - 2(15))^2 \cdot 15 = 0$ Jadi, volume kotak terbesar yang dapat dibuat adalah $\text{2.000 cm3}$.

Jawaban: (A) $\text{2.000 cm3}$

Gimana, apakah jawaban kalian benar?


Soal 7

Sedang

Diketahui $\sin{A} = \dfrac{1}{a}$ dan $A$ sudut tumpul. Nilai dari $\cos{A}$ adalah ...

Soal ini lebih mudah dikerjakan dengan konsep trigonometri pada lingkaran. Ingat bahwa

$$ \sin{A} = \frac{y}{r}, \quad \cos{A} = \frac{x}{r}, \quad \text{dan} \quad \tan{A} = \frac{y}{x}. $$

Pada soal, diketahui bahwa $\sin{A} = \dfrac{1}{a}$. Oleh karena itu, bisa dipilih $y = 1$ dan $r = a$. Perhatikan gambar berikut.

Untuk mencari $\cos{A}$, kita cari terlebih dahulu nilai $x$. Di sini, kita bisa menggunakan Pythagoras:

$$ x^2 + 1^2 = a^2 $$

$$ x^2 = a^2 - 1 $$

$$ x = \pm \sqrt{a^2 - 1} $$

Karena $x < 0$ (di kuadran 2), maka haruslah $x = -\sqrt{a^2 - 1}$.

Jadi, $\cos{A} = -\dfrac{\sqrt{a^2 - 1}}{a}$

Jawaban: (D) $-\dfrac{\sqrt{a^2 - 1}}{a}$

Gimana, apakah jawaban kalian benar?


Soal 8

Mudah

Diagram batang berikut menunjukkan produksi pakaian yang dikelola Bu Rahmi selama tahun 2020 dari bulan Januari sampai bulan Desember.

Peningkatan tertinggi jumlah produksi pakaian Bu Rahmi terjadi pada bulan ...

Dari diagram, terlihat bahwa peningkatan tertinggi jumlah produksi pakaian terjadi di antara bulan Juni atau November.

Peningkatan Juni: $81 - 18 = 63$ Peningkatan November: $153 - 87 = 66$ Jadi, peningkatan tertingginya terjadi pada bulan November.

Jawaban: (E) November

Gimana, apakah jawaban kalian benar?


Soal 9

Mudah

Perhatikan data pada tabel nilai hasil ulangan matematika kelas XI SMA Z.

Nilai $f$
58 - 60 2
61 - 63 6
64 - 66 9
67 - 69 6
70 - 72 4
73 - 75 3

Modus dari data tersebut adalah ...

Ingat bahwa rumus modus untuk data kelompok adalah

$$ M_O = L + \frac{d_1}{d_1 + d_2} \cdot c. $$

Di sini:

  • $L$ batas bawah kelas modus * $d_1$ selisih frekuensi kelas modus dengan kelas sebelumnya * $d_2$ selisih frekuensi kelas modus dengan kelas setelahnya * $c$ panjang kelas Perhatikan tabel berikut.
Nilai $f$
58--60 2
61--63 6 $d_1 = 9 - 6 = 3$
64--66 9 kelas modus
67--69 6 $d_2 = 9 - 6 = 3$
70--72 4
73--75 3

Jelas bahwa $L = 64 - 0{,}5 = 63{,}5$ dan $c = 3$. Oleh karena itu, modusnya adalah

$$ M_O = 63{,}5 + \frac{3}{3 + 3} \cdot 3 = 63{,}5 + 1{,}5 = 65. $$

Jawaban: (C) $65{,}0$

Gimana, apakah jawaban kalian benar?


Soal 10

Sedang

Sekolah P akan mengirim 2 perwakilan grup band untuk Pentas Musik Nusantara pada peringatan Hari Sumpah Pemuda. Sekolah tersebut memiliki 6 grup band putra dan 4 grup band putri. Berdasarkan penilaian, kemampuan grup band tersebut merata sehingga penentuan kedua perwakilan grup band dilakukan dengan cara mengambil secara acak satu persatu. Peluang terambil grup band putra pada pengambilan pertama dan grup band putri pada pengambilan kedua adalah ...

Pada pengambilan pertama, peluang terambilnya grup band putra adalah $\dfrac{6}{10}$.

Sekarang, grup band yang tersisa adalah 9 karena satu grup band sudah diambil sebelumnya.

Pada pengambilan kedua, peluang terambilnya grup band putri adalah $\dfrac{4}{9}$.

Oleh karena itu, peluang terambil grup band putra pada pengambilan pertama dan grup band putri pada pengambilan kedua adalah

$$ \frac{6}{10} \cdot \frac{4}{9} = \frac{4}{15}. $$

Jawaban: (C) $\dfrac{4}{15}$

Gimana, apakah jawaban kalian benar?


Soal 11

Mudah

Nilai dari $\dfrac{1}{4} + \dfrac{7}{4} \times \dfrac{8}{21}$ adalah ...

Woilah ini soal bonus loh ya😹

$$ \frac{1}{4} + \frac{\cancel{7}}{\cancel{4}} \times \frac{\cancel{8}^2}{\cancel{21}^3} = \frac{1}{4} + \frac{2}{3} = \frac{1 \cdot 3 + 4 \cdot 2}{4 \cdot 3} = \frac{11}{12} $$

Jawaban: (C) $\dfrac{11}{12}$

Gimana, apakah jawaban kalian benar?


Soal 12

Sedang

Mirna akan memproduksi dua jenis kue dengan modal Rp8.000.000,00. Biaya produksi kue bolu sebesar Rp15.000,00 per kotak dan dijual dengan laba 40%. Sedangkan biaya produksi kue brownies sebesar Rp20.000,00 per kotak dan dijual dengan laba 35%. Setiap harinya, Mirna dapat memproduksi paling banyak 500 kotak kue.

Apabila Mirna ingin memperoleh keuntungan maksimum, tentukan Benar atau Salah untuk setiap pernyataan berikut!

Pernyataan Benar Salah

Mirna harus memproduksi 200 kotak kue bolu.

Mirna harus memproduksi kue brownies lebih banyak

Keuntungan maksimum yang dapat diperoleh Mirna adalah Rp3.100.000,00.

Langkah Pertama: Memisalkan Variabel

Misalkan $x$ banyak kotak kue bolu yang diproduksi dan $y$ banyak kotak kue brownies yang diproduksi.

Langkah Kedua: Membuat Model Pertidaksamaan

Perhatikan bahwa biaya produksi kue bolu sebesar Rp15.000,00 per kotak dan biaya produksi kue brownies sebesar Rp20.000,00 per kotak. Karena modalnya Rp8.000.000,00, maka model pertidaksamaannya adalah

$$ 15.000x + 20.000y \leq 8.000.000 $$

Dalam kata lain, total biaya produksi kue bolu dan kue brownies maksimal sebesar Rp8.000.000,00.

Selanjutnya, perhatikan bahwa karena Mirna dapat memproduksi paling banyak 500 kotak kue, maka model pertidaksamaannya adalah

$$ x + y \leq 500 $$

Oleh karena itu, jika kita membagi pertidaksamaan pertama dengan 5.000, model pertidaksamaan lengkapnya adalah

$$ \begin{cases} 3x + 4y \leq 1.600 x + y \leq 500 x \geq 0 y \geq 0 \end{cases} $$

Dua pertidaksamaan terakhir ditambahkan untuk menjamin bahwa banyak kue bolu dan kue brownies selalu positif (tidak masuk akal jika banyak kue ada sebanyak negatif).

Langkah Ketiga: Menggambar Daerah Sistem Pertidaksamaan

Agar lebih mudah, kita ganti tanda pertidaksamaan menjadi sama dengan. Juga, kita fokus terlebih dahulu ke dua persamaan pertama:

$$ \begin{cases} 3x + 4y = 1.600 x + y = 500 \end{cases} $$

Sekarang, kita cari titik potong masing-masing persamaan terhadap sumbu-$x$ dan sumbu-$y$.

Persamaan $x$ $y$ $(x, y)$
$3x + 4y = 1600$ $\dfrac{1600}{3}$ $0$ $A\left(\dfrac{1600}{3}, 0\right)$
$0$ $400$ $B(0, 400)$
$x + y = 500$ $500$ $0$ $C(500, 0)$
$0$ $500$ $D(0, 500)$
Selanjutnya, kita cari titik potong kedua persamaan (SPLDV). Mengalikan persamaan kedua dengan 3, kita dapat mengeliminasi $x$ sebagai berikut:

$$ \begin{array}{rcrclr} 3x & + & 4y & = & 1.600 & 3x & + & 3y & = & 1.500 & - \hline & & y & = & 100 & \end{array} $$

Mensubstitusi nilai $y$ ini ke persamaan kedua, kita dapatkan

$$ x + 100 = 500 \implies x = 400. $$

Oleh karena itu, titik potongnya adalah $E(400, 100)$.

Dari model pertidaksamaan tersebut, gambar daerahnya adalah sebagai berikut:

Dapat dicek bahwa daerah yang memenuhi model pertidaksamaan lengkapnya adalah daerah kuning.

Langkah Keempat: Mencari Nilai Maksimum Laba

Karena persentase laba penjualan kue bolu sebesar 40% dan laba penjualan kue brownies sebesar 35%, maka laba Mirna sebenarnya adalah $40% \cdot 15.000 = 6.000$ untuk kue bolu dan $35% \cdot 20.000 = 7.000$ untuk kue brownies. Artinya, total labanya adalah

$$ L = 6.000x + 7.000y $$

Di sini, kita ingin memaksimalkan $L$ dengan mensubstitusi titik-titik batas (pojok) pada daerah kuning.

Titik Nilai $L$
$B(0, 400)$ $L = 6.000(0) + 7.000(400) = 2.800.000$
$C(500, 0)$ $L = 6.000\left(500\right) + 7.000(0) = 3.000.000$
$E(400, 100)$ $L = 6.000(400) + 7.000(100) = 3.100.000$

Jadi, keuntungan maksimum dari Mirna adalah Rp3.100.000,00 yang dapat diperoleh dari menjual 400 kotak kue bolu dan 100 kotak kue brownies.

Mengecek Pernyataan

Pernyataan pertama SALAH karena seharusnya Mirna harus memproduksi 400 kotak kue bolu.

Pernyataan kedua SALAH karene seharusnya kue bolu lebih banyak daripada kue brownies.

Pernyataan ketiga BENAR.

Jawaban: SALAH, SALAH, BENAR

Gimana, apakah jawaban kalian benar?


Soal 13

Sedang

Pada trapesium berikut, $AD = BC$, $\overline{AB}$ sejajar $\overline{DC}$, $AB > DC$, $\angle{BAD} = 70^{\circ}$, dan $\angle{ABD} = 30^{\circ}$.

Tentukan Benar atau Salah untuk setiap pernyataan berikut terkait dengan besar sudut pada trapesium $ABCD$!

Pernyataan Benar Salah

$\angle{BCD} = 110^{\circ}$

$\angle{CBD} = 40^{\circ}$

$\angle{BDC} = 40^{\circ}$

Pernyataan 1

Karena $\angle{A} = 70^{\circ}$ dan $\overline{AB}$ sejajar $\overline{DC}$ maka $\angle{D} = 180^{\circ} - 70^{\circ} = 110^{\circ}$.

Karena $ABCD$ trapesium sama kaki, maka $\angle{A} = \angle{B} = 70^{\circ}$ dan $\angle{D} = \angle{C} = 110^{\circ}$.

Oleh karena itu, pernyataan ini BENAR karena $\angle{BCD} = \angle{C} = 110^{\circ}$.

Pernyataan 2

Karena $\angle{ABD} = 30^{\circ}$ maka

$$ \angle{CBD} = \angle{ABC} - \angle{ABD} = 70^{\circ} - 30^{\circ} = 40^{\circ}. $$

Oleh karena itu, pernyataan ini BENAR.

Pernyataan 3

Perhatikan $\triangle{BCD}$. Karena $\angle{CBD} = 40^{\circ}$ dan $\angle{BCD} = 110^{\circ}$, maka

$$ \angle{BDC} = 180^{\circ} - 110^{\circ} - 40^{\circ} = 30^{\circ}. $$

Oleh karena itu, pernyataan ini SALAH.

Jawaban: BENAR, BENAR, SALAH

Gimana, apakah jawaban kalian benar?


Soal 14

Sedang

Perhatikan trapesium siku-siku berikut.

Pada trapesium tersebut, $AB = 3$ dan $AD \leq BC$.

Apakah keliling trapesium tersebut lebih dari 25?

Putuskan apakah dengan tambahan informasi Pernyataan (1) dan Pernyataan (2) berikut cukup untuk menjawab pertanyaan tersebut!

  1. Luas trapesium $ABCD$ adalah 24.
  2. $BC = 10$ dan $CD = 5$.

Sebelum mengerjakan, kita misalkan dulu $AD = x$, $BC = y$, dan $DC = z$.

Pernyataan (1) SAJA

Karena luas trapesiumnya 24 maka

$$ \cancel{24}^8 = \frac{(x + y) \cdot \cancel{3}}{2} $$

$$ 16 = x + y $$

Oleh karena itu, keliling trapesiumnya adalah

$$ K = 3 + x + y + z = 3 + 16 + z = 19 + z. $$

Perhatikan bahwa $z \geq AB = 3$. Oleh karena itu, $K \geq 19 + 3 = 22$ Informasi ini masih belum cukup untuk mengetahui apakah keliling trapesiumnya lebih dari 25 atau tidak.

Pernyataan (2) SAJA

Keliling trapesiumnya adalah

$$ K = 3 + x + y + z = 3 + 10 + y + 5 = 18 + y. $$

Perhatikan bahwa $AD \leq BC$ sehingga $x \leq y$. Oleh karena itu, $y \geq 10$ sehingga $K \geq 18 + 10 = 28$.

Informasi ini sudah cukup untuk menjawab apakah keliling trapesiumnya lebih dari 25 atau tidak (faktanya, jawabannya adalah YA).

Jawaban: (B) Pernyataan (2) SAJA cukup untuk menjawab pertanyaan, tetapi Pernyataan (1) SAJA tidak cukup.

Gimana, apakah jawaban kalian benar?


Soal 15

Sedang

Suatu tangga dengan panjang 6 meter disandarkan pada dinding vertikal. Sudut yang dibentuk tangga dengan lantai adalah $60^{\circ}$.

Tinggi dinding yang disentuh ujung atas tangga adalah ...

Misalkan tinggi dinding yang disentuh ujung atas tangga adalah $y$. Dengan trigonometri sederhana,

$$ \sin{60^{\circ}} = \frac{y}{6} \implies y = 6 \sin{60^{\circ}} = 6 \cdot \frac{\sqrt{3}}{2} = \text{3\sqrt{3} m}. $$

Jawaban: (C) $3\sqrt{3}$ meter

Gimana, apakah jawaban kalian benar?


Soal 16

Sedang

Rata-rata nilai ulangan 17 murid dari skala 100 adalah 83. Ada 3 murid yang mengikuti ujian susulan sehingga rata-rata nilai ulangan dari 20 murid menjadi 82.

Tentukan semua pernyataan berikut yang benar terkait dengan nilai ketiga murid yang mengikuti ujian susulan! Jawaban benar lebih dari satu.

Misalkan jumlah semua nilai ulangan 17 murid tersebut adalah $\Sigma{x}$. Misalkan juga jumlah semua nilai ulangan 3 murid yang mengikuti ujian susulan adalah $\Sigma{y}$.

Dengan menggunakan rumus rata-rata gabungan, kita tahu bahwa

$$ 82 = \frac{17\bar{x} + 3\bar{y}}{20} $$

$$ 82 \cdot 20 = 17 \cdot 83 + 3\bar{y} $$

$$ 1640 = 1411 + 3\bar{y} $$

$$ 229 = 3\bar{y} $$

$$ \bar{y} = \frac{229}{3} $$

Pernyataan 1

Karena $\bar{y} = \dfrac{\Sigma{y}}{3}$, maka nilai ketiga murid yang mengikuti ujian susulan adalah

$$ \frac{229}{3} = \frac{\Sigma{y}}{3} \implies \Sigma{y} = \frac{229}{3} \cdot 3 = 229. $$

Oleh karena itu, pernyataan ini BENAR

Pernyataan 2

Pernyataan ini BENAR karena $\bar{y} = \dfrac{229}{3} \approx 76.33 > 70$.

Pernyataan 3

Dari pernyataan 1, jika terdapat 2 siswa dengan nilai 100, maka sisanya akan memiliki nilai 29. Artinya, mustahil nilai terendah dari ketiga murid ini kurang dari 29.

Oleh karena itu, pernyataan ini BENAR.

Pernyataan 4

Andaikan sebaliknya berlaku, yakni nilai tertingginya 76, maka jumlah nilai mereka bertiga maksimal adalah $76 \cdot 3 = 228$. Padahal total nilai mereka seharusnya 229. Artinya, mustahil nilai tertinggi dari ketiga murid ini tidak lebih dari 76.

Oleh karena itu, pernyataan ini BENAR.

Pernyataan 5

Pernyataan ini jelas SALAH. Sebagai contoh, jika nilai ketiga murid yang mengikuti ujian susulan adalah 69, 80, 80, maka jangkauannya adalah 11 yang kurang dari 72.

Jawaban: (1), (2), (3), (4) BENAR dan (5) SALAH

Gimana, apakah jawaban kalian benar?


Soal 17

Sedang

Suatu fungsi didefinisikan oleh $f(x) = 4(x^2 - 8x + 12)$.

Tentukan Benar atau Salah pada setiap pernyataan berikut yang terkait dengan grafik fungsi $f$.

Pernyataan Benar Salah

Grafik fungsi $f$ terbuka ke atas.

Grafik fungsi $f$ memotong garis $y = -18$.

Grafik fungsi $f$ tidak melalui kuadran tiga.

Jika kita jabarkan, fungsi $f$ akan berbentuk $f(x) = 4x^2 - 32x + 48$.

Pernyataan 1

Karena $a = 4 > 0$ maka $f$ terbuka ke atas.

Oleh karena itu, pernyataan ini BENAR.

Pernyataan 2

Kita substitusi $f(x)$ dengan $-18$. Dari sini, kita akan mendapatkan persamaan

$$ -18 = 4x^2 - 32x + 48 $$

$$ 0 = 4x^2 - 32x + 66 $$

Diskriminan dari persamaan kuadrat ini adalah

$$ D = (-32)^2 - 4(4)(66) = 32^2 - 32 \cdot 33 < 0. $$

Karena diskriminannya negatif, berarti $f$ tidak memotong garis $y = -18$.

Oleh karena itu, pernyataan ini SALAH.

Pernyataan 3

Misalkan akar-akar dari fungsi kuadrat $f$ adalah $x_1$ dan $x_2$. Mudah dilihat bahwa $x_1 + x_2 = 8$ dan $x_1 \cdot x_2 = 12$. Artinya, kedua akarnya positif. Selain itu, dari pernyataan 1, $f$ terbuka ke atas. Hal ini menunjukkan bahwa grafik fungsi $f$ tidak mungkin melalui kuadran 3.

Oleh karena itu, pernyataan ini BENAR.

Jawaban: BENAR, SALAH, BENAR

Gimana, apakah jawaban kalian benar?


Soal 18

Mudah

Tagihan listrik bulanan di sebuah apartemen dihitung berdasarkan jumlah energi listrik (dalam kWh) yang digunakan. Apartemen tersebut masih menggunakan meteran listrik yang berbeda dari penggunaan token. Biaya tagihan listrik dihitung dengan rumus

$$ f(x) = 1.350x + 25.000. $$

Keterangan:

  • $f(x)$: total tagihan listrik (dalam rupiah)
  • $x$: jumlah pemakaian energi listrik (kWh)

Andi merupakan salah satu penghuni apartemen tersebut yang menerima tagihan pembayaran listrik seperti terlihat pada gambar berikut:

Dia menyadari bahwa penggunaan listrik sebulan terakhir lebih dari penggunaan listrik biasanya.

Berdasarkan informasi tersebut, biasanya berapa besar penggunaan listrik di apartemen Andi? Pilihlah jawaban yang benar! Jawaban benar lebih dari satu.

Karena penggunaan listrik sebulan terakhir lebih banyak dari penggunaan listrik biasanya, berarti secara umum berlaku

$$ f(x) \leq 160.000 $$

$$ 1.350x + 25.000 \leq 160.000 $$

$$ 1.350x \leq 135.000 $$

$$ x \leq 100 $$

Oleh karena itu, seluruh opsi yang kurang dari 100 merupakan opsi yang BENAR.

Jawaban: (1), (2) BENAR dan (3), (4), (5) SALAH

Gimana, apakah jawaban kalian benar?


Soal 19

Sedang

Pak Andi akan mempresentasikan desain gedung berukuran $\text{60 cm} \times \text{60 cm}$ menggunakan proyektor ke layar berukuran $\text{2,4 m} \times \text{1,8 m}$ yang dipasang di depan ruang rapat (orientasi horizontal). Proyektor menghasilkan pembesaran proporsional tergantung jaraknya dari layar.

Pak Andi menempatkan proyektor dengan jarak yang menghasilkan skala pembesaran seperti terlihat pada gambar berikut:

Bagaimanakah tampilan desain gedung di layar?

Tentukan Benar atau Salah pada setiap pernyataan berikut!

Pernyataan Benar Salah

Perbandingan ukuran tampilan desain di layar adalah $1 : 1$.

Ukuran panjang dan lebar tampilan desain pada layar adalah lebih dari $\text{1 m}$.

Terdapat bagian gambar asli desain yang terpotong dalam tampilan pada layar.

Soalnya gajelas cik


Soal 20

Mudah

Luki adalah panitia bazar di sekolahnya. Dia mendapat tugas dari ketua pelaksana untuk membuat kupon. Dia ingin di setiap kupon memiliki kode akses yang unik. Kode akses kupon bazar itu memiliki lima karakter dengan format sebagai berikut:

$$ \boxed{\texttt{AXBYC}} $$

dengan $\texttt{A}$, $\texttt{B}$, dan $\texttt{C}$ menyatakan huruf, serta $\texttt{X}$ dan $\texttt{Y}$ menyatakan angka. Tidak boleh ada angka dan huruf yang diulang. Berapakah berapa banyak kode akses berbeda yang dapat dibuat?

Untuk $\texttt{A}$, terdapat 26 pilihan huruf.

Untuk $\texttt{B}$, terdapat 25 pilihan huruf (karena huruf yang sama tidak boleh dipakai kembali).

Untuk $\texttt{C}$, terdapat 24 pilihan huruf.

Untuk $\texttt{X}$, terdapat 10 pilihan angka.

Untuk $\texttt{A}$, terdapat 9 pilihan angka.

Jadi, total banyaknya kode akses berbeda yang dapat dibuat adalah

$$ 26 \cdot 25 \cdot 24 \cdot 10 \cdot 9 = 1.404.000 $$

Jawaban: (C) $1.404.000$

Gimana, apakah jawaban kalian benar?

Komentar

Jaga etika; komentar yang tidak pantas akan dihapus.

Memuat komentar...